1 290 000,00 PLN (13 899,36 PLN)

Luksusowy apartament w sercu Kudowy-Zdroju!

Mieszkanie na sprzedaż,
Kudowa-Zdrój, Zesłańców Sybiru

Kontakt z agentem: RS Real Estate
Opis nieruchomości

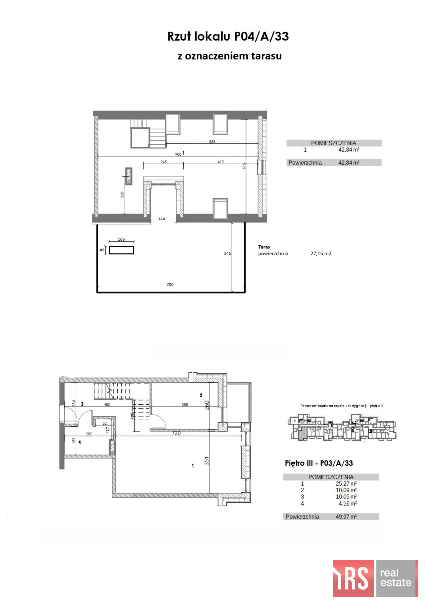
Zapraszam do zapoznania się z wyjątkową ofertą sprzedaży przestronnego mieszkania o powierzchni 92,81 m² + 27,16m²  Tarasu do wyłącznej dyspozycji, położonego w prestiżowym kompleksie Slavita Park w Kudowie-Zdroju. To miejsce, gdzie nowoczesny styl życia łączy się z pięknem przyrody, oferując nie tylko komfort, ale także wspaniałą lokalizację w pobliżu atrakcji regionu.

Wyjątkowa lokalizacja i możliwości aktywnego wypoczynku.
Kudowa-Zdrój, malowniczo usytuowana u podnóża Gór Stołowych, zachwyca swoim klimatem i atrakcjami turystycznymi przez cały rok. Doskonała komunikacja oraz bliskość Parku Zdrojowego i licznych szlaków turystycznych sprawiają, że to idealne miejsce dla miłośników aktywności na świeżym powietrzu. Zaledwie kilkanaście minut dzieli Cię od Zieleńca - jednego z najpopularniejszych ośrodków narciarskich w Polsce, co czyni tę nieruchomość również świetną inwestycją pod wynajem krótkoterminowy lub długoterminowy.

Nowoczesne udogodnienia i przestronność.
Mieszkanie usytuowane jest na trzecim piętrze nowoczesnego apartamentowca, a jego układ pozwala na elastyczne zagospodarowanie wnętrz. Na pierwszym poziomie znajdują się przestronne pomieszczenia, które można zaaranżować według własnych potrzeb. Antresola natomiast może pełnić funkcję domowego biura, strefy relaksu lub dodatkowej sypialni.

Zarządzanie komfortem i jakością życia.
Budowany w standardzie deweloperskim, apartament pozwala na personalizację wykończenia, co zapewnia indywidualny charakter Twojego miejsca. W budynku znajduje się winda, a także podziemny garaż ( obowiązkowy zakup - dodatkowy koszt 50 000 zł) oraz parking zewnętrzny, co zwiększa komfort codziennego korzystania z mieszkania. Przemyślana infrastruktura, w tym zieleń oraz plac zabaw, stwarza idealne warunki do relaksu i aktywnego wypoczynku dla całej rodziny.

Nie przegap tej wyjątkowej okazji!
Jeśli marzysz o inwestycji w nieruchomość, która łączy komfort, piękno natury i możliwości aktywnego wypoczynku, to ta oferta jest dla Ciebie! Skontaktuj się ze mną, aby umówić się na prezentację mieszkania i krok w stronę realizacji swoich marzeń. Zadzwoń lub napisz - chętnie pomogę Ci w podjęciu tego kroku!

Plan Nieruchomości
Mapa
Kontakt z agentem

RS Real Estate

Adam Świda
Nieprawidłowy adres E-mail

Strona korzysta z plików cookie w celu realizacji usług zgodnie z Polityką prywatności. Możesz określić warunki przechowywania lub dostępu do cookie w Twojej przeglądarce.